Квартира в ЖК Парус
Руководитель: Сергей Рассеко
Архитектор: Алексей Сергеев, Тимур Саракуца
Менеджер: Дмитрий Разумейчик
Дата: ноябрь 2018
Площадь: 116 м2
Строительные работы: 10 месяцев
Бюджет проекта:


Задача:
Разработать дизайн интерьера в современном стиле.
Пожелания клиента
— Нам нравятся современные квартиры в нью-йоркском стиле, с дорогой качественной мебелью и большим количеством свободного пространства внутри. Предпочитаем темные интерьеры с мягкой подсветкой и отраженным светом, поэтому люстр должно быть по минимуму. Отделочные материалы — исключительно натуральные: дерево, стекло, металл.

Сергей,
руководитель студии
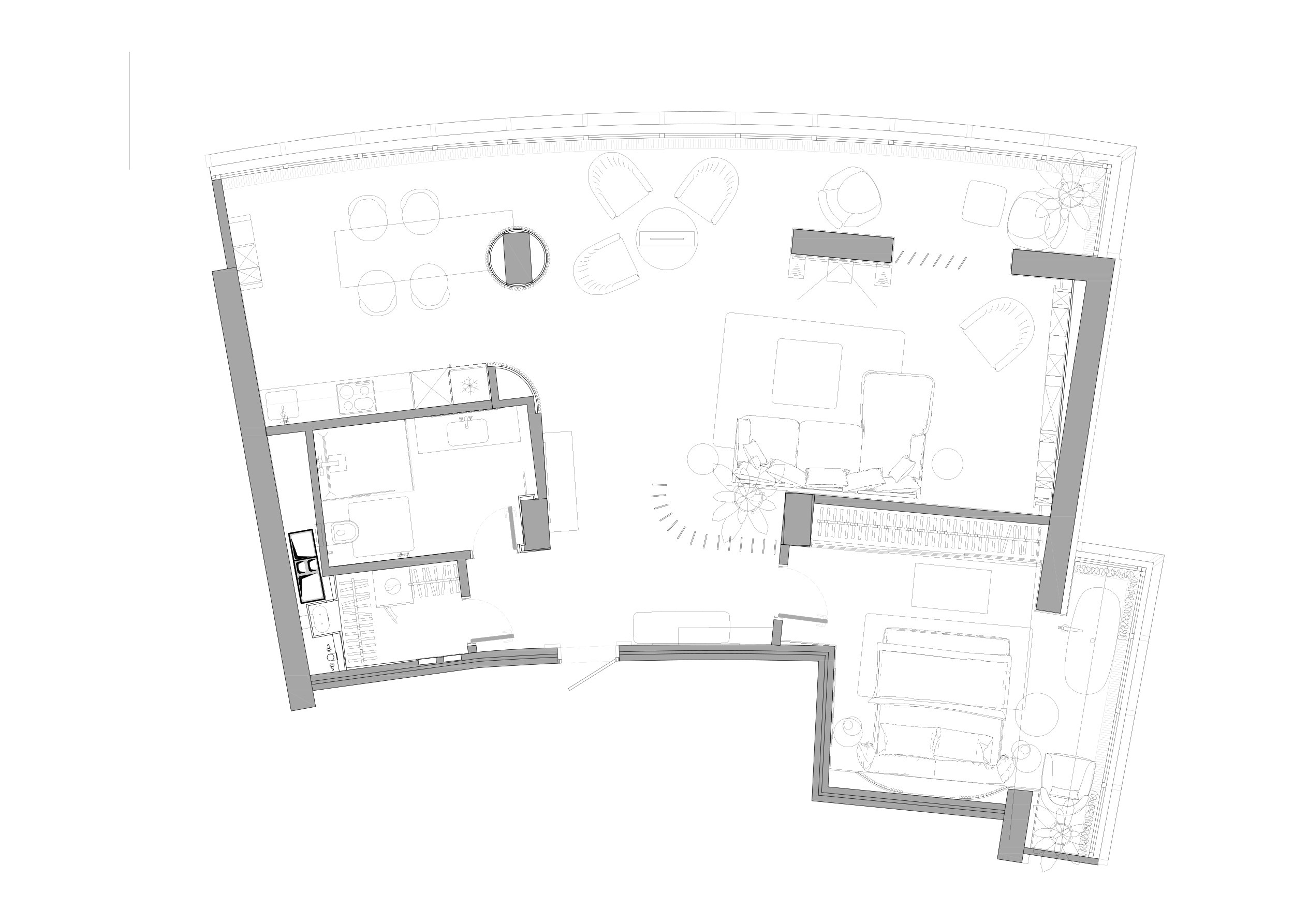
Планировка без прямых углов
Этот объект — уникальный в своем роде. Главная особенность планировки квартиры состоит в том, что в ней практически нет прямых углов. Поэтому логичным решением дизайнера стало намерение эффектно обыграть этот нюанс и сделать его «фишкой» всего интерьера: придать помещению еще больше динамики, добавив дополнительные радиусные элементы.
Оpen space занимает значительную часть квартиры, общая площадь которой составляет 116 кв. метров. Поэтому для заказчика было принципиально, чтобы прямо со входа можно было увидеть весь объем помещения. Решением стала ширма из широких шпонированных реек. Такая конструкци я функционально отделяет, но при этом не загромождает пространство.

Сколько стоит дизайн-проект интерьера квартиры?
Сергей, руководитель студии RHome
— Мы работаем официально, по договору, с прозрачным ценообразованием.
Воспользуйтесь простым калькулятором, чтобы узнать стоимость своего дизайн-проекта.
Рассчитать стоимостьКвартира в духе Нью-Йорка
Планировка на нью-йоркский манер — это много открытого пространства, где кухня плавно пере текает в столовую, столовая — в гостиную, а из гостиной можно попасть уже в приватные зоны.
Вся гостиная разделена на несколько обозначенных зон: есть TV-зона с большим удобным диваном, зона отдыха с современным биокамином, просторная столовая и функциональная кухня.
— В основе успеха любого проекта — правильная организация пространства. Именно на работе с пространством изначально должен строиться интерьер. Мебель, декор — лишь дополнение. Они не являются основой дизайна и легко меняются в зависимости от настроения.


Дмитрий,
руководитель проектов
Цветовая палитра интерьера квартиры базируется на разнообразных оттенках натурального дерева: от контрастного темно-коричневого до песочного.
Отличительная особенность здания — сплошное панорамное остекление по всему периметру квартиры — большая удача для дизайнера. Такие конструкции открывают неповторимый вид на город, придают помещению эксклюзивность и обеспечивают пространство максимальным количеством света.

Если присмотреться, можно увидеть, что в квартире практически нет гладких стен. Каждая поверхность — это какая-то фактура: деревянные стеновые панели, шпонированные рейки, металлизированные плинтусы и декоративные элементы, встроенная мебель. Дизайнеру было важно сделать интересное пространство, которое было бы любопытно рассматривать из любой точки.
Как мы работаем с клиентами в RHome
Создание дизайн-проекта включает в себя 7 этапов. Мы хотим подробно рассказать о каждом из них, чтобы вы могли заранее узнать, что стоит за созданием интерьера.
ПодробнееМраморный стол "вырастает" из несущей колонны
Визуальным центром квартиры стала просторная столовая. Несущую колонну не стали прятать, а, наоборот, сделали акцентом всего помещения. Большой обеденный стол из массивного куска мрамора будто вырастает из колонны, являясь ее необычным продолжением. Стулья, изготовленные из прозрачного пластика, не загромождают пространство и добавляют интерьеру еще больше изысканности и утонченности.


В проекте использовались материалы

Салон дверей

Салон интерьерных решений

Салон напольных покрытий и дверей

Декоративная штукатурка и краска

Современные электроустановочные изделия

Салон плитки и сантехники

Мастерская камня

Салон светильников

Салон штор и текстиля

Студия интерьеров







