Горани Барнхаус
Руководитель: Алексей Сергеев
Архитектор: Евгений Сиваков, Евгений Ковалевский
Менеджер: Дмитрий Разумейчик
Дата: июль 2022
Площадь: 250 м2
Бюджет проекта:







Задача:
Спроектировать дом и интерьер для сдачи в аренду.
Пожелания клиента
— Есть участок с прекрасным видом на озеро Свирь. Нужно спроектировать дом в стиле Шале.

Сергей,
руководитель студии
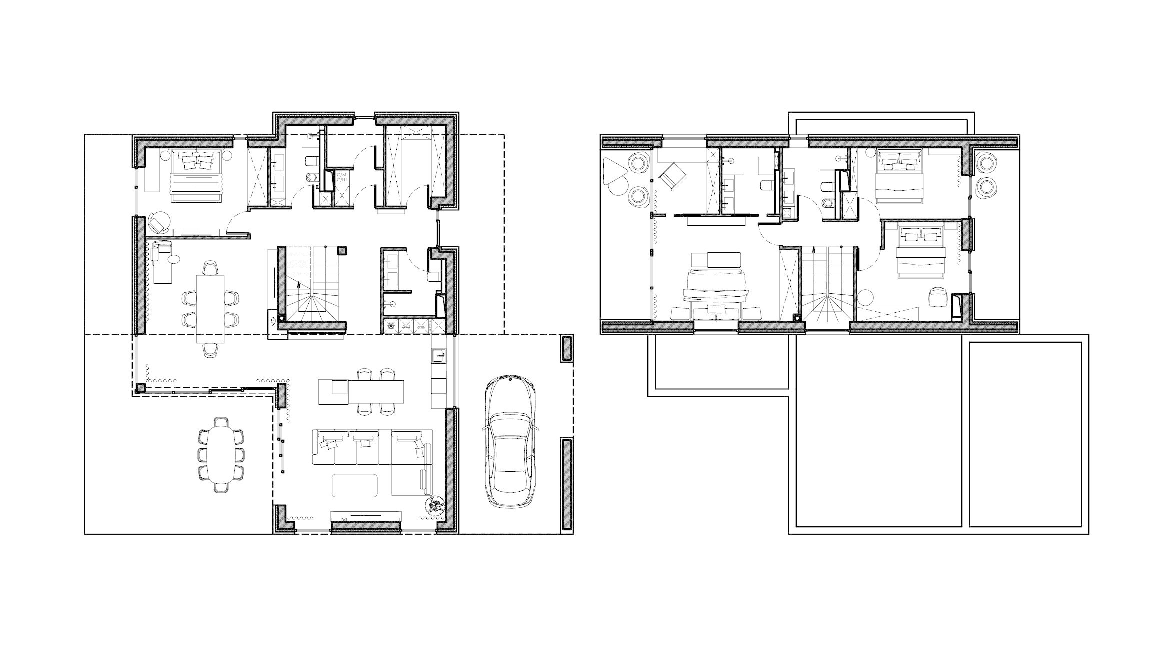
Планировка
Первый этаж дома представляет собой общее безтупиковое пространство, из которого предусмотрено несколько выходов на террасу и зону для барбекю. Закарнизные подсветки, панорамное остекление, светлые натуральные тона отделки визуально расширяют помещение и создают ощущение полного погружения в природу.

Сколько стоит дизайн-проект интерьера дома?
Сергей, руководитель студии RHome
— Мы работаем официально, по договору, с прозрачным ценообразованием.
Воспользуйтесь простым калькулятором, чтобы узнать стоимость своего дизайн-проекта.
Рассчитать стоимостьГостиная с камином и зона отдыха
Массивную грубоватую фактуру обеденного стола уравновешивают мягкие кресла. Камин немецкой мануфактуры Brunner , просматриваемый со стороны кухни и зоны отдыха наполняет дом уютом и является местом притяжения, чтобы уединиться или провести вечер за приятными разговорами.

— Одним из ключевых решений для данного проекта стала кольцевая система передвижения. В центре кольца — лестница на второй этаж, заключённая в куб. Конструкция лестницы-куба зонирует и при этом не перегружает пространство. Благодаря такому решению планировка проста и логична. Перейти в любую зону можно двигаясь по кругу.


Светлана,
архитектор

Как мы работаем с клиентами в RHome
Создание дизайн-проекта включает в себя 7 этапов. Мы хотим подробно рассказать о каждом из них, чтобы вы могли заранее узнать, что стоит за созданием интерьера.
ПодробнееСпальня с выходом на террасу
В интерьере комнаты для гостей предусмотрено всё для комфортного отдыха: кровать Minotti Tatlin Soft, встроенный шкаф и небольшая зона отдыха с мягким креслом. Прикроватные тумбы Minotti Lou на фоне правильной геометрии комнаты выглядят как оригинальный арт-объект.

Мастер-спальня на мансардном этаже
Стены оттенка Half Mushroom, шпон светлых тонов, высокий потолок и два окна наполняют спальню хозяев воздухом и светом. Предусмотрено отдельное помещение для гардероба и места для макияжа, оборудованного лаконичным столиком выполненном по эскизам дизайнера.
К спальне примыкает большой просторный санузел. Отделка стен выполнена керамогранитом. Дополнительный объем пространству создаёт зеркало, расположенное во всю стену с подсветкой по периметру.
Архитектурное решение дома
Нам удалось органично вписать современную архитектуру дома в природный ландшафт. Эстетика стиля Barnhouse с простыми линиями, натуральные отделочные материалы в спокойных естественных тонах придают строению эффект полной погруженности в окружающую среду. Участок находится в лесистой местности, где сезонные растения соседствуют с вечнозелеными. Осенью не будет ощущения пустоты от облетевших деревьев, а поздней весной и летом хозяева дома могут любоваться их пышным цветением.


В качестве технологии строительства выбран принцип цельномонолитной конструкции. Это позволяет не только реализовать проект загородного дома за короткий срок, но и сделать его долговечным. Для кровли выбран износостойкий фальц, а стены утеплены каменной ватой.
Фасад облицован натуральными материалами: деревом и армированным керамогранитом. Предусмотрен подъезд со стоянкой и крытым навесом для одного автомобиля. Рядом с домом оборудовано место для костра и смотровой площадкой с живописным видом на озеро.



В проекте использовались материалы

Центр интерьерных решений

Розетки и выключатели

Салон интерьеров

Салон дверей

Салон интерьерных решений

Декоративная штукатурка и краска

Салон плитки и сантехники

Мастерская камня

Салон светильников

Салон немецкой мебели

Алюминиевые профильные системы

Немецкие камины

























